Palestra SO

Cronologia / Chronology

  • Progetto definitivo:
    2008
  • Progetto esecutivo:
    2009
  • Realizzazione:
    2009 completata

Dati essenziali / Main data

  • Committente:
    Provincia di Sondrio
  • Superficie:
    1.200 mq.
  • Costo di costruzione:
    €. 1.010.000,00
  • Servizi professionali:
    Progettazione architettonica, coordinamento delle prestazioni specialistiche, computi metrici e capitolati, direzione e contabilità dei lavori, coordinamento della sicurezza del cantiere in fase di progettazione, Progettazione Antincendio

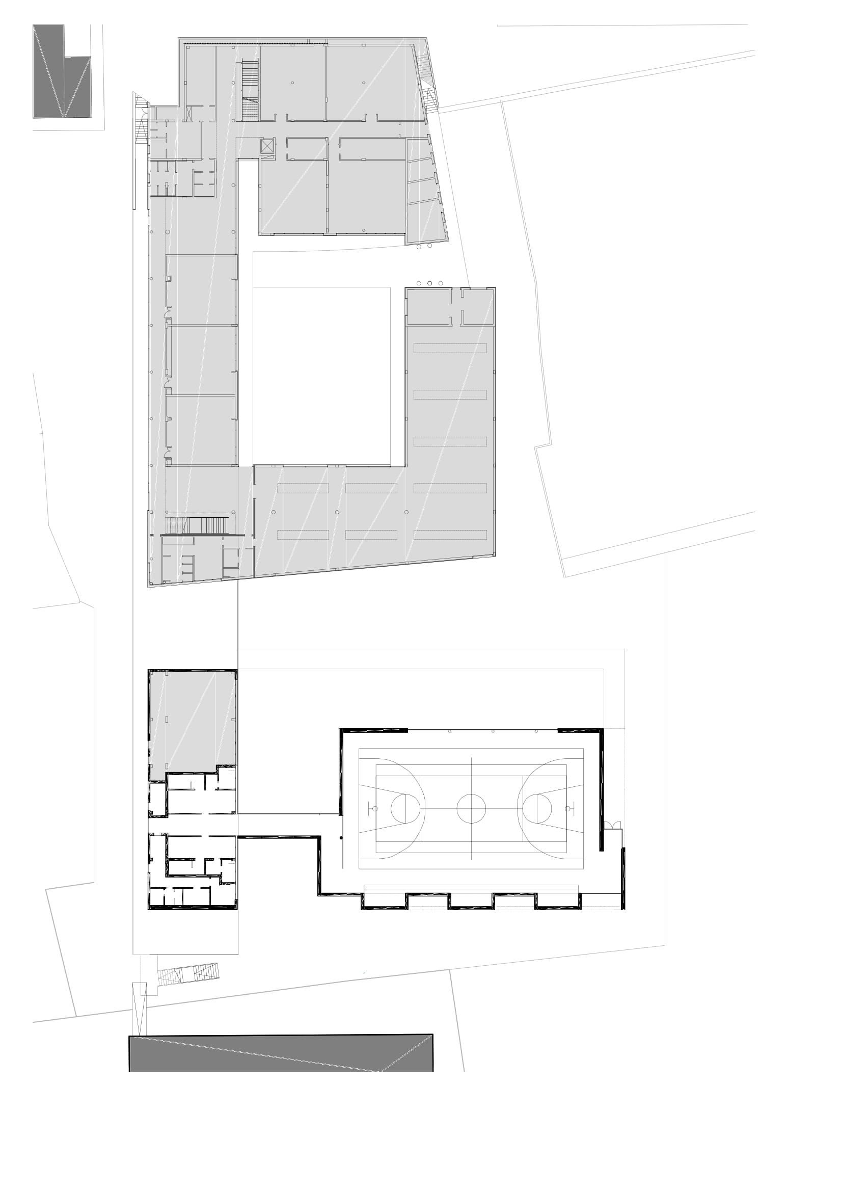
Il programma ripercorre le linee di indirizzo del progetto di riqualificazione del campus, vincitore del concorso indetto dall’Amministrazione provinciale nel 2001.

La palestra si colloca ad est dell’istituto scolastico IPSIA completato nel 2005 con il quale dialoga recependo forme e materiali ed al quale si collega per sfruttare gli spazi di piano terra da adibire a spogliatoi.  

Il grande volume che ospita il campo di gioco e le tribune è caratterizzato dall’andamento della copertura concepita per mantenere, perimetralmente, la quota di gronda dell’adiacente istituto scolastico oltre la quale si sviluppano le sole emergenze degli elementi strutturali.

Le facciate sono contraddistinte da colori materiali ed elementi architettonici affini all’edificio scolastico; intonaco di colore bianco per i fronti in contrasto con le superfici grigio scuro che celano gli elementi strutturali di copertura; rivestimenti in pietra per le porzioni di basamento che inquadrano le aperture, frangisole in alluminio per la grande vetrata orientata ad est che caratterizza il fronte con l’ingresso per il pubblico.

Partner

  • LFL architetti
  • Luconi Fumagalli Lavorincorso

Pubblicazioni

  • Edilizia e Territorio, Il Sole 24 Ore, Maggio 2017

Via IV Novembre, 17, 23851 Galbiate LC / T + F 0341 540371 P.Iva - CF 02258100136 - Questo indirizzo email è protetto dagli spambots. È necessario abilitare JavaScript per vederlo.