Istituto scolastico IPSIA Campus di Sondrio

Cronologia / Chronology

  • Concorso di progettazione:
    2001
  • Progetto definitivo:
    2002
  • Progetto esecutivo:
    2003
  • Realizzazione:
    2003-2005 completata

Dati essenziali / Main data

  • Committente:
    Provincia di Sondrio
  • Superficie:
    4.314 mq.
  • Costo di costruzione:
    €. 2.810.000,00
  • Servizi professionali:
    Progettazione architettonica, coordinamento delle prestazioni specialistiche, computi metrici e capitolati, direzione e contabilità dei lavori, coordinamento della sicurezza del cantiere.

Pubblicazioni

  • Casabella, n° 742 Marzo 2006.
  • LFL architetti – architetture 2001-2006, IDEA architecture books, Collana “architettura italiana contemporanea”.
  • AD Maggio/Giugno 2007 “Italy a new architectural Landscape”.
  • Scuole, Grandi Tascabili Architettura, Tecnotipo Mancuso, Settembre 2011.
  • Progetto e Pubblico, Ottobre 2010.
  • OFArch, n° 107 Marzo-Aprile 2009.
  • L’industria delle costruzioni n° 398/2008.
  • Arketipo Il Sole 24 Ore n° 19/2007.

Nel 2001 l’amministrazione provinciale di Sondrio ha bandito un concorso di progettazione in due fasi per la riqualificazione del Campus scolastico in via Tonale, che abbiamo vinto con LFL architetti. Questo nuovo edificio è stato il primo passo dell’ambizioso programma. Il progetto ha ricevuto il premio Dedalo Minosse - ALA Assoarchitetti 2006 under 40.

La scuola si attesta nel cuore del Campus ponendosi come spina dorsale e riferimento per i successivi interventi che permetteranno di superare l’attuale frammentazione del complesso.

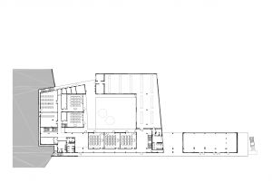
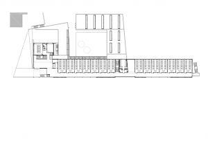
L’edificio si articola in tre corpi di fabbrica:

  • il basamento di piano terra adibito ai laboratori didattici agli spazi di archivio e magazzino, ai locali tecnici e di servizio;
  • il corpo longitudinale, lungo oltre 100 metri, che ospita le 14 aule didattiche;
  • il volume di ingresso di tre piani fuori terra, che ospita l’atrio a tripla altezza e, ai piani superiori, le aule speciali: biblioteca, informatica, scienze.

Tre soli materiali contraddistinguono l’architettura: la pietra grigia per il basamento dei laboratori, le superfici intonacate dei volumi soprastanti, le ampie superfici vetrate collocate in prossimità degli spazi esterni di relazione. La sobrietà delle forme, lo studio di dettagli essenziali e al contempo raffinati, il controllo dei costi di appalto e il rispetto dei tempi di costruzione sono gli elementi rilevanti della realizzazione.

Partner

  • LFL architetti
  • Luconi Fumagalli Lavorincorso

Premi

  • Padiglione architettura “EXPO Milano 2015”, Belle Arti a cura di Vittorio Sgarbi.
  • “Piransi International Awards 2006”, selezione
  • Premio Ala Assoarchitetti 2006 under 40 nell’ambito del “Premio Internazionale Dedalo Minosse alla Committenza di Architettura”;

Via IV Novembre, 17, 23851 Galbiate LC / T + F 0341 540371 P.Iva - CF 02258100136 - Questo indirizzo email è protetto dagli spambots. È necessario abilitare JavaScript per vederlo.