Casa bifamiliare LL, Galbiate (LC)

Cronologia / Chronology

  • Progetto preliminare:
    2002
  • Progetto definitivo:
    2002/2003
  • Progetto esecutivo:
    2003
  • Realizzazione:
    2004/2005 completata

Dati essenziali / Main data

  • Committente:
    Privato
  • Superficie:
    700 mq.
  • Servizi professionali:
    Progettazione architettonica, pratiche di autorizzazione paesaggistica e di permesso a costruire, coordinamento delle prestazioni specialistiche, computi metrici e capitolati, direzione e contabilità dei lavori.

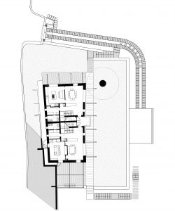
L’area è posta in un contesto di indiscusso valore naturale e paesaggistico, sul versante del Monte Barro, ai limiti del Parco Naturale Regionale, e gode di una vista a 360 gradi sulla pianura e i laghi briantei.

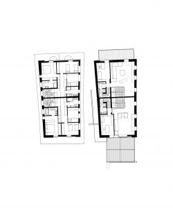
Grazie alla ristrutturazione edilizia di un fabbricato preesistente, del quale sono state conservate tipologia e giacitura, è stato possibile ottenere due unità unifamiliari affiancate, disposte su tre livelli. L’introduzione di un basamento che ospita l’autorimessa e gli spazi accessori ha altresì permesso di offrire alle abitazioni un ampio giardino pensile rivolto verso l’incantevole panorama. Il progetto architettonico coniuga le forme e i materiali tradizionali impiegati per il volume esistente con il linguaggio contemporaneo adottato per i nuovi elementi annessi: il basamento è rivestito in pietra, il pergolato e i terrazzi annessi al volume residenziale sono risolti in acciaio e legno. Questa definizione connette diverse tracce pur mantenendole entro i limiti di una memoria architettonica che ha sparso nei secoli i suoi frammenti tra le maglie del paesaggio circostante.


Via IV Novembre, 17, 23851 Galbiate LC / T + F 0341 540371 P.Iva - CF 02258100136 - Questo indirizzo email è protetto dagli spambots. È necessario abilitare JavaScript per vederlo.