Ateneo Riello SPA, Lecco

Cronologia / Chronology

  • Progetto preliminare:
    2011
  • Progetto definitivo:
    2012
  • Progetto esecutivo:
    2013
  • Realizzazione:
    2015 completata

Dati essenziali / Main data

  • Committente:
    Privato
  • Superficie:
    650 mq.
  • Servizi professionali:
    Progettazione architettonica, pratiche autorizzative, coordinamento delle prestazioni specialistiche, computi metrici e capitolati, direzione e contabilità dei lavori, coordinamento della sicurezza del cantiere.

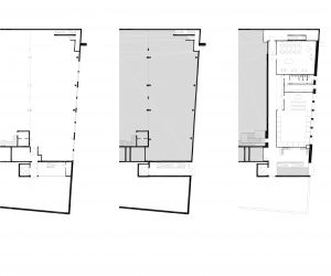
L’intervento ha richiesto la progettazione di nuovi spazi da destinare alla formazione del personale addetto alla manutenzione dei sistemi prodotti da Riello spa.

La soluzione individuata prevede l’allestimento di due aule didattiche e di spazi di servizio e accoglienza entro un volume industriale già in precedenza adibito ad accogliere un magazzino e alcune attività produttive.

La realizzazione di un avancorpo, destinato a ospitare un nuovo sistema distributivo (scale e ascensore), e  di una nuova facciata anteposta a quella esistente offre l’occasione per ridefinire e qualificare l’immagine architettonica dell’edificio presente.


Via IV Novembre, 17, 23851 Galbiate LC / T + F 0341 540371 P.Iva - CF 02258100136 - Questo indirizzo email è protetto dagli spambots. È necessario abilitare JavaScript per vederlo.