Centro sportivo Comunale di Olgiate Molgora (LC)

Cronologia / Chronology

  • Progetto definitivo:
    2004
  • Progetto esecutivo:
    2005
  • Realizzazione:
    2006-2007 completata

Dati essenziali / Main data

  • Committente:
    Comune Sirtori
  • Superficie:
    530 mq.
  • Costo di costruzione:
    €. 538.000,00
  • Servizi professionali:
    Studio di fattibilità, progettazione architettonica preliminare, definitiva ed esecutiva, coordinamento delle prestazioni specialistiche, computi metrici e capitolati, direzione e contabilità lavori, coordinamento della sicurezza del cantiere.

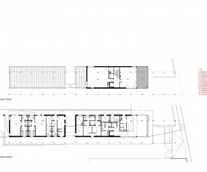
Il nuovo edificio collocato nell’ampio spazio aperto esistente tra la palestra e il campo di calcio assolve a un duplice obiettivo: costituire un nuovo fronte riconoscibile lungo via pubblica e rafforzare il ruolo aggregativo che il Centro Sportivo comunale esercita sul quartiere.

Da qui l’idea di un fabbricato che, proteso verso la strada per invitare all’accesso, si sviluppa longitudinalmente sottraendo meno superficie possibile alla corte interna e rivolgendo ad essa una lunga tribuna coperta.

L’architettura è articolata in due corpi:

- quello a due piani attestato su Via Aldo Moro ospita il bar, i servizi per il pubblico, gli spogliatoi e i locali per le associazioni;

- nel secondo volume sono collocati gli spogliatoi del calcio, i relativi spazi di supporto e, al primo piano, una grande terrazza rivolta sia al campo di gioco che alla corte interna.

In tutto l’intervento sono stati impiegati tre soli materiali: acciaio zincato per la pensilina e verniciato per i serramenti, intonaco a base di calce naturale per le murature, rivestimenti in doghe di legno di larice per le superfici protette dalla tettoia.

Partner

  • LFL architetti
  • Luconi Fumagalli Lavorincorso

Premi

  • Premio Nazionale di Architettura Inarh – Ance 2007, selezione

Pubblicazioni

  • AD Maggio/Giugno 2007 “Italy a new architectural Landscape”
  • Progetto e Pubblico, Ottobre 2010
  • Catalogo della rassegna di Progettocontemporaneo “Giovani architetti Italiani / 2”.

Via IV Novembre, 17, 23851 Galbiate LC / T + F 0341 540371 P.Iva - CF 02258100136 - Questo indirizzo email è protetto dagli spambots. È necessario abilitare JavaScript per vederlo.